- New, contemporary exterior styling: new front cap and logos
- Four generous floorplans: 32, 3532 Corian 32H, 35P, 37F and new 38Q
- TrueAir® Maximum Comfort A/C
- Corian® galley countertops and Corian sink covers.
- Radio with color rearview monitor system
- MCD Duo Solar/Blackout roller shades throughout coach
- Swivel Ultraleather cab seats
- LED ceiling lights – reduce energy consumption by up to 70 percent, extending battery life when dry camping
- Power mirrors with defrost and integrated side view cameras
- Powered patio awning with metal wrap and integrated LED patio lighting
- New convenient exterior LPG accessory connection near patio area
- Automatic hydraulic leveling jacks with three-position controls
- Ford® F53 super-duty V10 SEFI Triton® engine, 22,000-lb. GVWR (32H and 35P), 24,000-lb. GVWR (Standard 37F, available 35P), 26,000-lb. GVWR (38Q), 22.5” tires and stylized aluminum wheels, 5,000-lb. hitch
- Available features:
transition between the vehicle body, window frame, and the glass for superior sealing, reduced wind noise, improved operation, and excellent protection of the window edge.
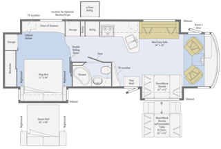
32H floorplan
The 32H lives much larger than its 33’ 3” length with a driver’s side full-wall slide expanding the living area. Highlights of this dual-slideout coach include an open-concept galley, a spacious mid-coach bath, a U-shaped dinette or optional Rest Easy sofa, sofa/bed or optional BenchMark Dinette, queen size walk-around bed and a large wardrobe and chest of drawers.

The 35P features three slideouts – including a full-wall slide on the driver’s side. This impressive floorplan features a BenchMark dinette or the optional BenchMark Dinette with extendable table and chairs, Rest Easy Sofa, open concept galley and mid-coach bath. The master bedroom has storage galore with a large wardrobe, and chest of drawers flanking the large king bed.
The 37F is a triple slide floorplan with an expansive full wall slide on the driver’s side of the coach featuring an extendable dining table and chairs, an open concept galley with 4-door refrigerator or optional residential refrigerator and wardrobe and chest of drawers for the bedroom. A RestEasy sofa and Euro recliner are in a slideout opposite the dinette, while the 37F also features a half bath across from the galley. The master bath is in the rear of the coach featuring the one-piece fiberglass BIG shower. A powered king bed is standard and a powered queen bed is optional.
The new 38Q features a triple slideout floorplan, creating three separate living zones, including a spacious lounge area with a Rest Easy extendable sectional sofa, a large corner TV with optional fireplace and a Euro recliner. The mid-coach galley features an island sink and stainless steel French door residential refrigerator with interior water and ice dispenser and glide-out, bottom freezer drawer. The 38Q features the new Glide and Dine dining table which allows horizontal adjustment of the table to any of the numerous locking positions, as well as expansion of the length of the table to accommodate additional seating positions. Two people can easily get ready at the same time with a cross-aisle split bath that features a toilet and sink on one side and the shower and a second sink on the other. The bedroom slide features a powered king or available powered queen bed and Ideal Rest Digital Comfort control mattress, a large, easy to view TV and loads of wardrobe and storage space.